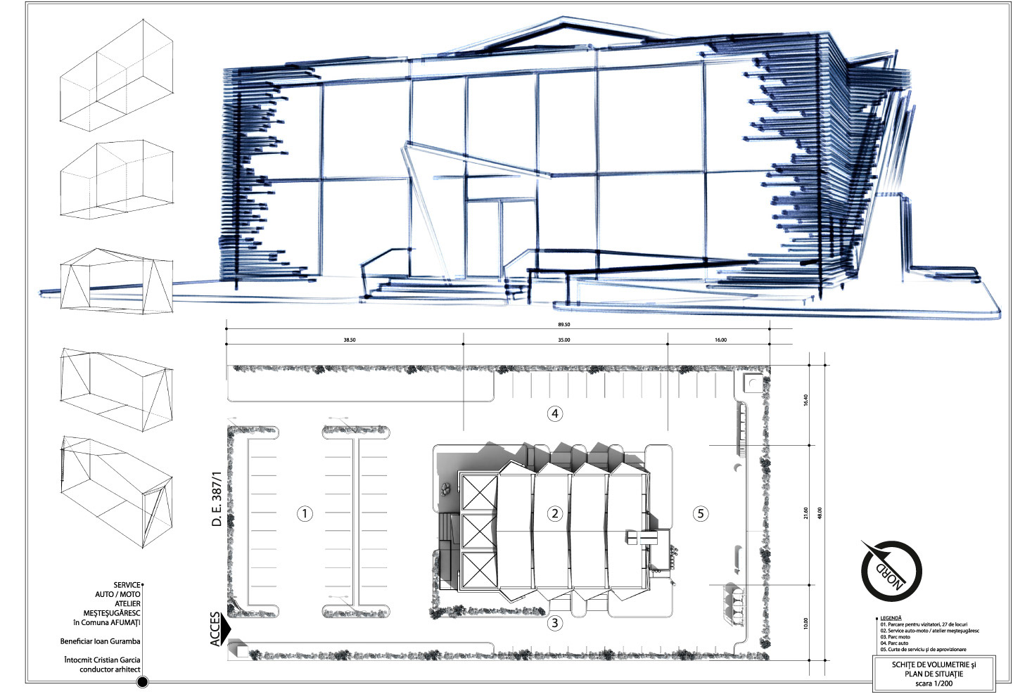
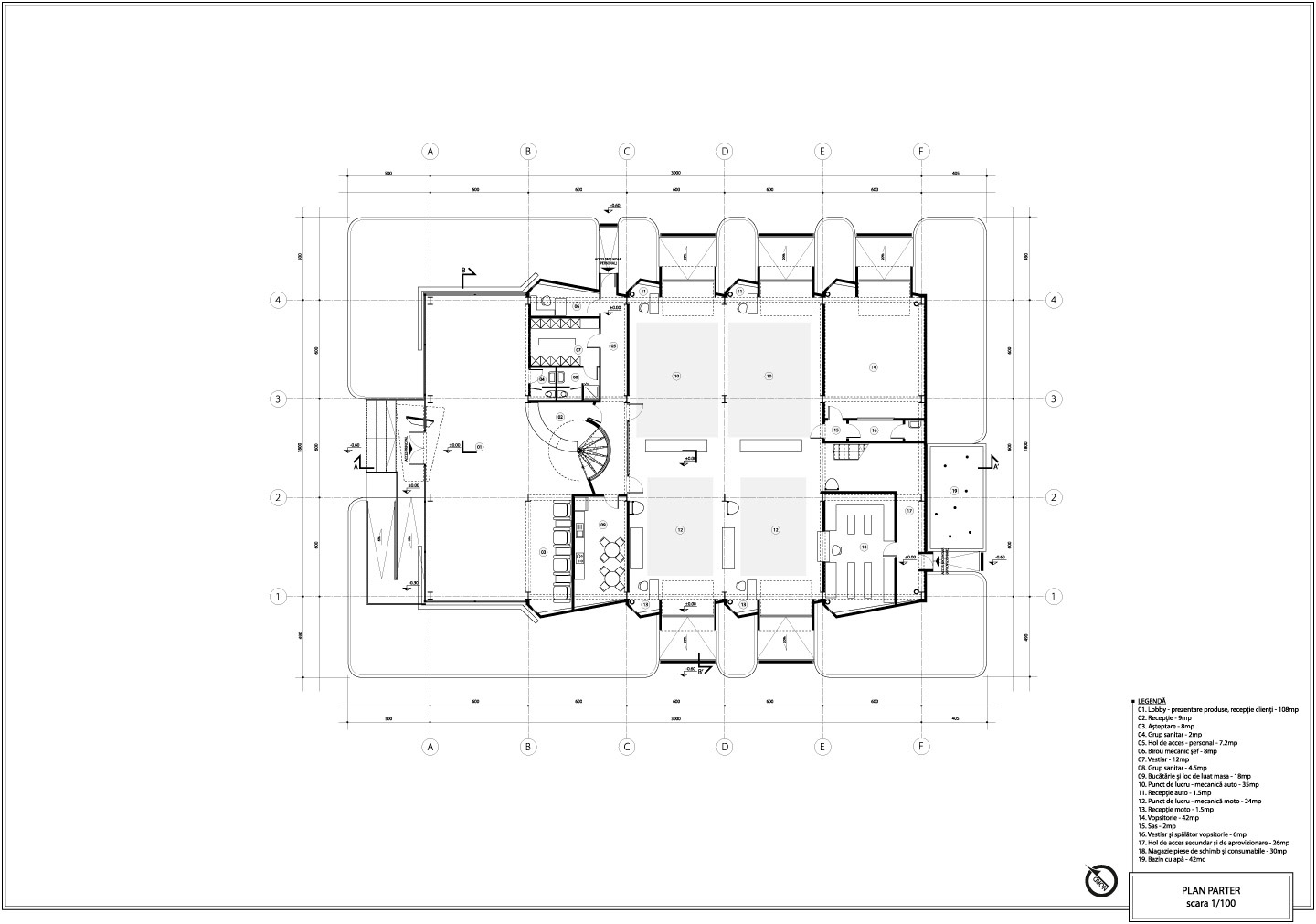
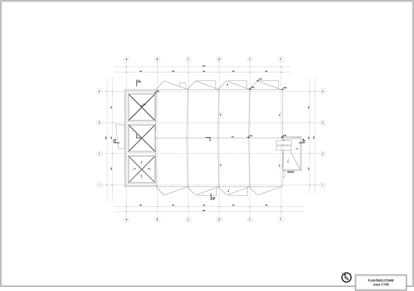
Amoto Bucharest Headquarters and Showroom
Insert copy here, which should vary depending on your region. Accept